Linki   Kontakt 

 
STRONA GŁÓWNA
 
  
 
Wydarzenia
Ogłoszenia parafialne
Intencje mszalne
Zapowiedzi przedślubne
 
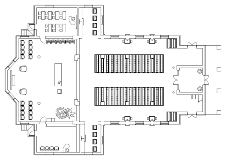
05.10.2008 r. - Rozbudowa kościoła

     W okresie od listopada 2007 roku trwały prace przygotowawcze mające na celu rozbudowę kościoła, a następnie remont części istniejącej kościoła.

     Prace, które zostały wykonane do dnia dzisiejszego to:

- inwentaryzacja budynku kościoła;
- ekspertyza i ocena techniczna konstrukcji budynku;
- wykonanie map geodezyjnych do celów projektowych;
- wykonanie kompletnego projektu technicznego, którego autorami są:

        - części architektonicznej P. Mariusz Chachoń,
        - części konstrukcyjno budowlanej P.Krzysztof Bąbol,
        - części instalacji wod.-kan. i co P. Paweł Pająk,
        - części instalacji elektrycznej P. Roman Przybysz.

Dane z projektu:

- powierzchnia użytkowa kościoła zwiększy się o 224,36 m2 i osiągnie po rozbudowie wielkość 597,33 m2;

- kubatura wzrośnie o 1663 m3 i osiągnie wielkość 4626 m3;

- wykonano wszystkie niezbędne prawem uzgodnienia i uzyskano decyzję pozwolenia na rozbudowę budynku kościoła, która uprawomocniła się w dniu 17-09-2008 r.

     Pracami budowlanymi przy wznoszeniu budynku kościoła kierować i nadzorować będą P. Andrzej Milewicz i P. Krzysztof Dula. Szacowana wartość kosztorysowa budowy wynosi 595 847 zł. brutto. Liczymy jednak, że uda się coś zaoszczędzić dzięki dobrej organizacji pracy i kupując materiały z upustami, między innymi od sąsiadującej z kościołem Firmy Stalbud. Planowany termin rozpoczęcia robót to pierwsza połową października, kiedy to na budowie rozpoczną się roboty związane z wytyczeniem budynku, roboty ziemne pod fundamenty, następnie zostaną wykonane fundamenty i ściany fundamentowe wraz z izolacjami przeciwwilgociowymi, które to będzie wykonywała Firma WEKTOR P. Radosława Chachuły, a w dalszej kolejności jeszcze w tym roku wymurowanie ścian budynku pod konstrukcję drewnianą dachu.

      W okresie zimowym planowane jest przeprowadzenie prac mających na celu stworzenie jednolitego projektu aranżacji architektonicznej wszystkich budynków znajdujących się na posesji kościoła oraz wykonanie aranżacji wystroju wnętrza świątyni.

      Prace budowlane związane z zadaszeniem, a następnie wykończeniem budynku świątyni zostaną rozpoczęte w miarę możliwości finansowych parafii i prawdopodobnie rozpoczną się po odpuście Serca Jezusowego 25 czerwca 2009 r.

     Prac związanych z zadaszeniem niestety nie da się wykonywać w okresie zimowym, ponieważ wiąże się to z ingerencją w istniejącą konstrukcję budynku ,a nie chcemy aby doszło do jakichkolwiek niedogodności. w funkcjonowaniu świątyni.

Powrót do archiwum

Powrót na górę

 

Projekt i wykonanie: Maria Papiernik ©